The Eden

£599,000

CONTACT US

Layout.

Ground Floor

Kitchen/Dining     19.2m x 4.14m

Utility                       3.35m x 1.71m

Living                      5.38m x 3.38m

Kitchen/Dining     63’ x 13’ 10”

Utility                       11’ x 5’ 7”

Living                      17’ 8” x 11’ 1”


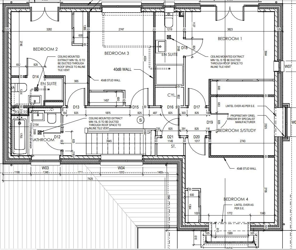
First Floor

Bedroom 1               4.01m x 3.82m

En suite 1                  3.17m x 1.22m

Bedroom 2              3.97m x 3.28m

En suite 2                 2.15m x 1.22m

Bedroom 3              4.03m x 2.75m

Bedroom 4              4.23m x 3.84m

Bed 5 / study          2.74m x 2.53m

Bathroom                2.15m x 2.07m

Bedroom 1               13’ 2” x 12’ x 6”

En suite 1                  10’ 5” x 4’

Bedroom 2              13’ 3” x 10’ 9”

En suite 2                 7’ 6” x 4’

Bedroom 3              13’ 3” x 9’ 3”

Bedroom 4              13’ 11” x 12’ 7”

Bed 5 / study          9’ x 8’ 4”

Bathroom                7’ 1” x 6’ 9”